Cod. Rif.: 6825
Vendita € 21.000 - Terreno
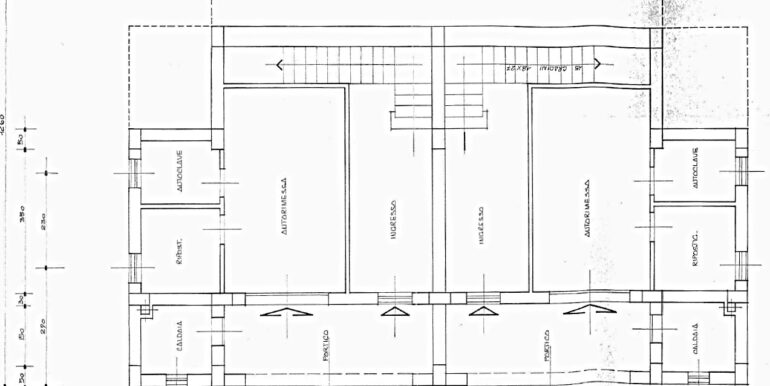
Via Posta. Vende lotto di terreno edificabile (con fabbricato in costruzione) per una superficie di circa 1940 mq, nel cuore del Parco Regionale Sirente Velino, zona Villaggio Eurofin, a breve distanza dal caratteristico centro storico e dal suggestivo Castello che domina il paese. Il lotto, evidenziato con perimetro giallo nella mappa catastale, dispone di progetti e concessioni edilizie, attualmente da rinnovare. Nelle immagini i disegni della villa bifamiliare evidenziano la cubatura e le altezze previste ed autorizzate sul lotto. In vendita altri lotti, l’uno di 21.880 mq , riferimento I.D. 6625, l’altro è un lotto di 2000 mq , riferimento I.D. 6725. Le volumetrie edificabili sugli altri due lotti, sono identificabili con questa tipologia di villa bifamiliare o nelle altre tipologie identificate per ciascun lotto e per l’intero compendio; l’edificio in costruzione evidenzia concretamente la cubatura realizzabile, così come le ville esistenti nel complesso residenziale. Vista panoramica.


















