Cod. Rif.: 6625
Vendita € 240.000 - Terreno
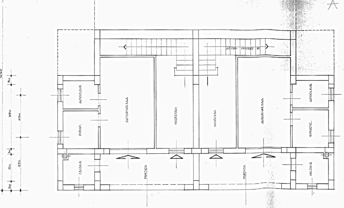
Via Posta. Vende lotto di terreno edificabile per una superficie di circa 21.880 mq, zona Villaggio Eurofin, nel cuore del Parco Regionale Sirente Velino, a breve distanza dal caratteristico centro storico e dal suggestivo Castello che domina il paese. La proprietà dispone di progetti e concessioni edilizie, attualmente da rinnovare, furono previste diverse tipologie di ville; nelle immagini i disegni di una villa bifamiliare evidenzia la cubatura e le altezze previste ed autorizzate. In vendita altro lotto in aderenza, evidenziato con perimetro giallo, di circa 2000 mq , riferimento I.D. 6725, e lotto di 1940 mq con edificio in costruzione, riferimento I.D. 6825. Le volumetrie edificabili sono identificabili per ciascun lotto e per l’intero compendio; l’edificio in costruzione evidenzia concretamente la cubatura realizzabile, così come le ville esistenti del complesso residenziale. Vista panoramica.

















